Trilocale in vendita

Capurso
€ 180.000
3 locali 3 locali
90 Mq 90 Mq
1 bagno 1 bagno

Trilocale in vendita

Capurso

Descrizione annuncio

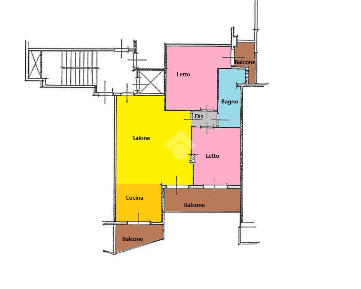
Nel comune di Capurso, proponiamo in vendita un appartamento di 90 mq situato a un piano alto di un edificio moderno, costruito nel 2000. L'immobile è servito da ascensore e offre un ambiente accogliente e funzionale. La disposizione interna comprende due camere da letto, ideali per una famiglia o per chi desidera uno spazio aggiuntivo per ospiti o studio. Il soggiorno, luminoso e ben distribuito, si affaccia su uno dei tre balconi, garantendo un'ottima ventilazione e luce naturale. La cucina è separata, offrendo praticità e comfort. Il bagno è dotato di tutti i servizi essenziali. Completa la proprietà un box auto, che aggiunge valore e comodità.

L'appartamento è inoltre dotato di un sistema di allarme con collegamento telefonico, assicurando tranquillità e sicurezza, videocitofono, zanzariere, tende da sole nuove, predisposizione aria condizionata.

Una soluzione abitativa che coniuga spazio, funzionalità e comfort in una posizione strategica.

Ape in valutazione

Mostra tutto

Nelle vicinanze

Trasporto pubblico Trasporto pubblico
Capurso
Capurso
550 m
Triggiano
Triggiano
1,6 Km
FSE e Locale
FSE e Locale
1,4 Km
FSE
FSE
1,7 Km
Scuole Scuole
Scuola Media "Edmondo De Amicis"
1,2 Km
Scuole
1,2 Km
Scuola elementare "Giovanni XXIII"
1,4 Km
Scuole
1,7 Km
Licei Classico Llinguistico Scientifico Cartesio
1,7 Km
Farmacia Farmacia
Farmacia
1,4 Km
Farmacia Comunale
2,3 Km
Ospedali Ospedali
Ospedale "Francesca Fallacara"
2,0 Km
Pronto Soccorso Ospedale "Francesca Fallacara"
2,1 Km
Ospedale "Francesca Fallacara" Padiglione Nord
2,1 Km
Supermercati Supermercati
Supermercati
1,3 Km
Lidl
2,6 Km
Penny Market
2,6 Km
Negozi Negozi
Negozi
2,9 Km
Bar Bar
Bar
1,2 Km
Ristoranti Ristoranti
iPizza
510 m
Ristorante sala ricevimenti "Villa Pigna"
1,8 Km
Pizzeria
1,9 Km
La Monnalisa
1,9 Km
Gamberosso triggiano
2,1 Km
Mostra tutto

Caratteristiche

Rif.:
61113119
Piano:
3 di 3 con ascensore (Piano alto)
Box:
1
Balconi:
3
Camere da letto:
2
Arredamento:
Assente
Mostra tutto
Prezzo Prezzo
€ 180.000
Rata mutuo Rata mutuo
€ 850 / mese
Spese annue Spese annue
€ 756
Proponi il tuo prezzoProponi il tuo prezzo

Classe Energetica

G
G
G
G
G
G
G
G
G
EP globale non rinnovabile:
175.00 kW h/m² anno
Anno di costruzione:
2000
Riscaldamento:
Autonomo
Tipo impianto:
A radiatori
Tipo alimentazione:
Metano

Ti interessa visionare l'immobile?

Fissa un appuntamento  Fissa un appuntamento

Richiedi informazioni

Clicca su Leggi per aprire l'informativa
* Questi campi sono obbligatori

Calcola il tuo mutuo

Semplice e senza impegno
Anticipo

( % )
Mutuo

( % )

pochi semplici passi

inserisci i tuoi dati
Questionario completato
Grazie per aver richiesto un appuntamento senza impegno con un nostro Consulente del Credito e Assicurativo.

Hai inserito correttamente tutti i dati necessari e a breve riceverai una e-mail con un link da convalidare per inviare i tuoi dati.
Affiliato
Studio Casamassima D.I.
Corso Vittorio Emanuele, 1/3 70010 Casamassima (BA)
Corso Vittorio Emanuele, 1/3 70010 Casamassima (BA)
Zona: Casamassima
Mostra su mappa
Orari: lunedì/venerdì:9.00-13.00/16.00-20.00; sabato:9.00-13.00
Affiliato
Studio Casamassima D.I.
Corso Vittorio Emanuele, 1/3 70010 Casamassima (BA)

2025 Tecnocasa Franchising S.p.A. - P. IVA 08365160152 - Via Monte Bianco 60/A 20089 Rozzano (MI). Ogni agenzia ha un proprio titolare ed è autonoma. Privacy policy | Policy utilizzo | Cookie policy