Quadrilocale in vendita

Casamassima, Via Bari
€ 273.240
4 locali 4 locali
118 Mq 118 Mq
2 bagni 2 bagni

Quadrilocale in vendita

Casamassima, Via Bari

Descrizione annuncio

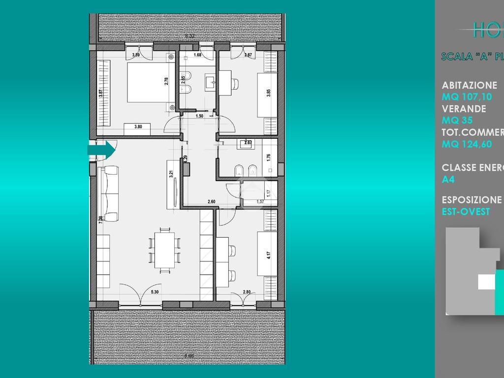
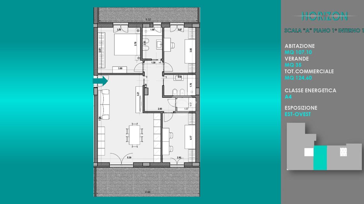
Appartamento primo piano, scala A, 4 vani di circa 107,10mq+ 35 mq composto da: salone con angolo cottura, disimpegno, camera da letto, due camerette, ripostiglio e due bagni. Doppia esposizione.

Tutti gli appartamenti offrono locali luminosi e moderni, perfetti per famiglie o professionisti in cerca di spazio e comfort. Ogni appartamento è dotato di un impianto fotovoltaico garantendo un risparmio energetico significativo e un impatto ambientale ridotto, riscaldamento a pompa di calore, impianto climatizzazione di riscaldamento e raffrescamento, infissi PVC doppio vetro basso emissivo con anta ribalta e sistema microventilazione, avvolgibili in alluminio coibentato elettrico con predisposizione di sollevamento centralizzato, predisposizione impianto allarme e finiture moderne. Possibilità di abbinare un box auto o un posto auto.

Mostra tutto

Nelle vicinanze

Trasporto pubblico Trasporto pubblico
Casamassima
Casamassima
900 m
Ricariche auto elettriche Ricariche auto elettriche
Casamassima Deledda | EnelX
160 m
Casamassima Pende | EnelX
680 m
Casamassima Sammichele | EnelX
1,5 Km
Scuole Scuole
Scuole
170 m
I circolo didattico Guglielmo Marconi
1,0 Km
Farmacia Farmacia
Farmacia Palattella
800 m
Supermercati Supermercati
Tuodí
750 m
SPAZIO CONAD
860 m
Negozi Negozi
Negozi
980 m
TATA
1,2 Km
Scarpe & Scarpe
1,2 Km
Bar Bar
Sunrise
910 m
Special One Cafè
1,0 Km
Ristoranti Ristoranti
Ristoranti
820 m
Mostra tutto

Caratteristiche

Rif.:
61123750
Piano:
1 di 4 con ascensore (Piano basso)
Balconi:
2
Camere da letto:
3
Arredamento:
Assente
Condizionamento:
Autonomo
Mostra tutto
Prezzo Prezzo
€ 273.240
Rata mutuo Rata mutuo
€ 1.292 / mese
Proponi il tuo prezzoProponi il tuo prezzo
Immobile valutato con T·Valuta

Classe Energetica

A4
A4
A4
A4
A4
A4
A4
A4
A4
EP invernale del fabbricato:
EP estiva del fabbricato:
Anno di costruzione:
2027
Riscaldamento:
Autonomo
Tipo impianto:
A pavimento
Tipo alimentazione:
Altro

Ti interessa visionare l'immobile?

Fissa un appuntamento  Fissa un appuntamento

Richiedi informazioni

Clicca su Leggi per aprire l'informativa
* Questi campi sono obbligatori

Calcola il tuo mutuo

Semplice e senza impegno
Anticipo

( % )
Mutuo

( % )

pochi semplici passi

inserisci i tuoi dati
Questionario completato
Grazie per aver richiesto un appuntamento senza impegno con un nostro Consulente del Credito e Assicurativo.

Hai inserito correttamente tutti i dati necessari e a breve riceverai una e-mail con un link da convalidare per inviare i tuoi dati.
Affiliato
Studio Casamassima D.I.
Corso Vittorio Emanuele, 1/3 70010 Casamassima (BA)
Corso Vittorio Emanuele, 1/3 70010 Casamassima (BA)
Zona: Casamassima
Mostra su mappa
Orari: lunedì/venerdì:9.00-13.00/16.00-20.00; sabato:9.00-13.00
Affiliato
Studio Casamassima D.I.
Corso Vittorio Emanuele, 1/3 70010 Casamassima (BA)

2026 Tecnocasa Franchising S.p.A. - P. IVA 08365160152 - Via Monte Bianco 60/A 20089 Rozzano (MI). Ogni agenzia ha un proprio titolare ed è autonoma. Privacy policy | Policy utilizzo | Cookie policy