Trilocale in vendita

Casamassima, Via Vecchia Gioia
€ 175.000
3 locali 3 locali
80 Mq 80 Mq
1 bagno 1 bagno

Trilocale in vendita

Casamassima, Via Vecchia Gioia

Descrizione annuncio

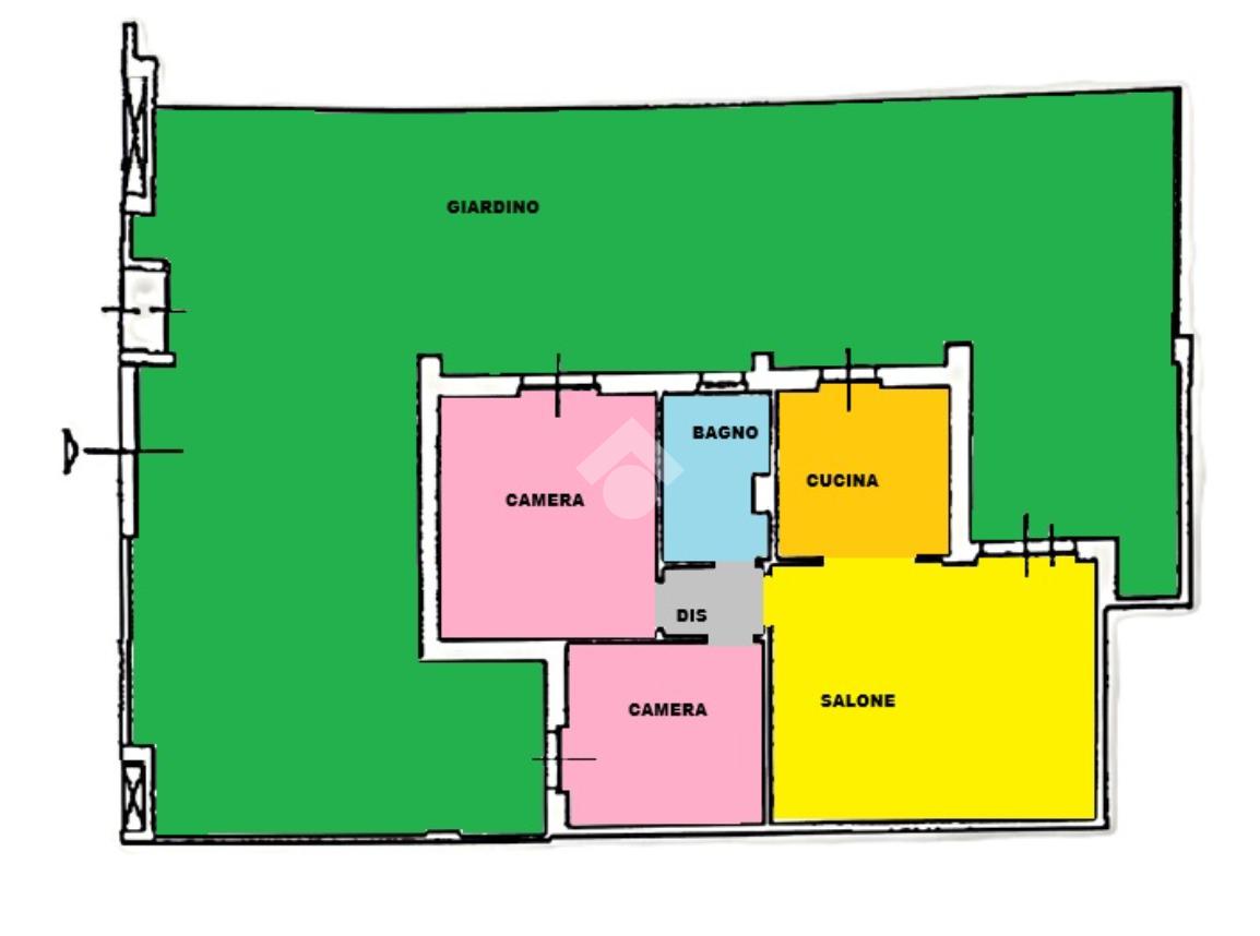
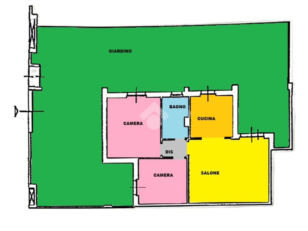
Nel cuore di Casamassima, proponiamo un appartamento di 80 mq, ideale per chi cerca una soluzione abitativa moderna e funzionale. Situato in un contesto residenziale tranquillo, l'immobile, costruito nel 2011, offre spazi ben distribuiti e luminosi. Ingresso Indipendente.

L'ingresso si apre su un ampio soggiorno, la cucina, separata, è progettata per garantire praticità e comfort. La zona notte comprende due camere da letto, entrambe accoglienti e ben illuminate, ideali per una famiglia o per chi desidera uno spazio aggiuntivo per lo studio o gli ospiti. Il bagno, moderno e ben rifinito, completa la proprietà.

L'unità abitativa è arricchita da un giardino privato, perfetto per momenti di relax all'aperto. Inoltre, l'appartamento è dotato di aria condizionata, assicurando un clima piacevole in ogni stagione.

Questa soluzione abitativa rappresenta un'opportunità interessante per chi desidera vivere in un contesto tranquillo, senza rinunciare alle comodità moderne. L'appartamento è situato in una zona ben servita, con facile accesso a negozi, scuole e trasporti pubblici, rendendolo una scelta conveniente per chi desidera vivere in una comunità dinamica e ben collegata.

Mostra tutto

Nelle vicinanze

Trasporto pubblico Trasporto pubblico
Casamassima
Casamassima
850 m
Ricariche auto elettriche Ricariche auto elettriche
Casamassima Sammichele | EnelX
90 m
Casamassima Pende | EnelX
970 m
Casamassima Deledda | EnelX
1,4 Km
Scuole Scuole
I circolo didattico Guglielmo Marconi
580 m
Scuole
1,4 Km
Farmacia Farmacia
Farmacia Palattella
780 m
Supermercati Supermercati
Tuodí
1,5 Km
SPAZIO CONAD
2,1 Km
Negozi Negozi
Negozi
590 m
Scarpe & Scarpe
2,5 Km
TATA
2,5 Km
Bar Bar
Special One Cafè
640 m
Sunrise
670 m
Ristoranti Ristoranti
Ristoranti
620 m
Mostra tutto

Caratteristiche

Rif.:
61133766
Piano:
Basso di 5 con ascensore
Totale piani:
5
Camere da letto:
2
Arredamento:
Assente
Condizionamento:
Autonomo
Mostra tutto
Prezzo Prezzo
€ 175.000
Rata mutuo Rata mutuo
€ 827 / mese
Spese annue Spese annue
€ 216
Proponi il tuo prezzoProponi il tuo prezzo
Immobile valutato con T·Valuta

Classe Energetica

D
D
D
D
D
D
D
D
D
EP globale non rinnovabile:
1.00 kW h/m² anno
Anno di costruzione:
2011
Riscaldamento:
Autonomo
Tipo impianto:
A pavimento
Tipo alimentazione:
Metano

Ti interessa visionare l'immobile?

Fissa un appuntamento  Fissa un appuntamento

Richiedi informazioni

Clicca su Leggi per aprire l'informativa
* Questi campi sono obbligatori

Calcola il tuo mutuo

Semplice e senza impegno
Anticipo

( % )
Mutuo

( % )

pochi semplici passi

inserisci i tuoi dati
Questionario completato
Grazie per aver richiesto un appuntamento senza impegno con un nostro Consulente del Credito e Assicurativo.

Hai inserito correttamente tutti i dati necessari e a breve riceverai una e-mail con un link da convalidare per inviare i tuoi dati.
Affiliato
Studio Casamassima D.I.
Corso Vittorio Emanuele, 1/3 70010 Casamassima (BA)
Corso Vittorio Emanuele, 1/3 70010 Casamassima (BA)
Zona: Casamassima
Mostra su mappa
Orari: lunedì/venerdì:9.00-13.00/16.00-20.00; sabato:9.00-13.00
Affiliato
Studio Casamassima D.I.
Corso Vittorio Emanuele, 1/3 70010 Casamassima (BA)

2026 Tecnocasa Franchising S.p.A. - P. IVA 08365160152 - Via Monte Bianco 60/A 20089 Rozzano (MI). Ogni agenzia ha un proprio titolare ed è autonoma. Privacy policy | Policy utilizzo | Cookie policy