Trilocale in vendita

Casamassima, V. Conversano
€ 222.333
Prezzo aggiornato
3 locali 3 locali
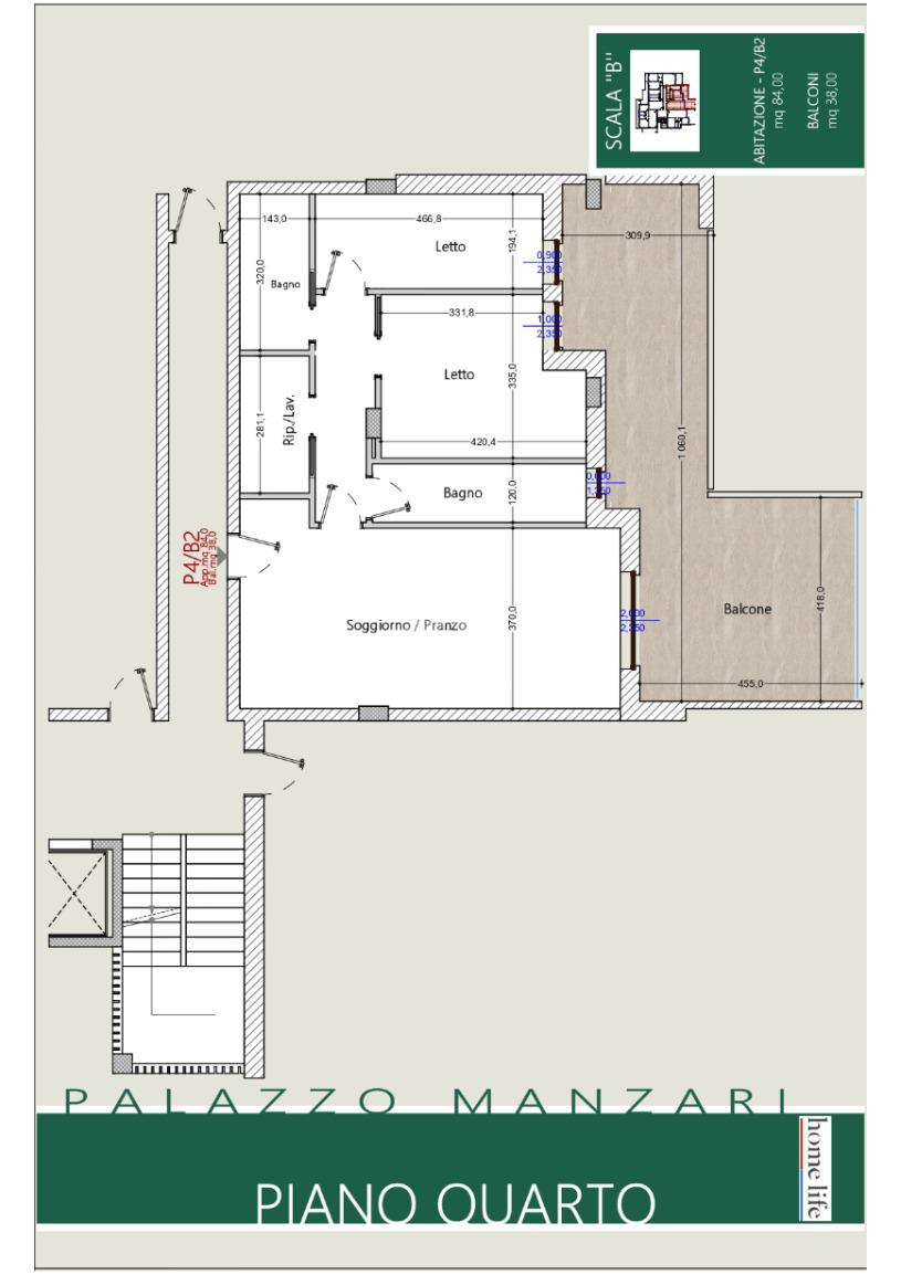
84 Mq 84 Mq
2 bagni 2 bagni

Trilocale in vendita

Casamassima, V. Conversano

Descrizione annuncio

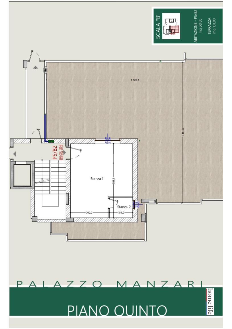
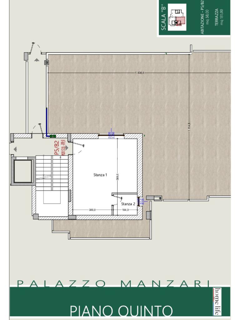
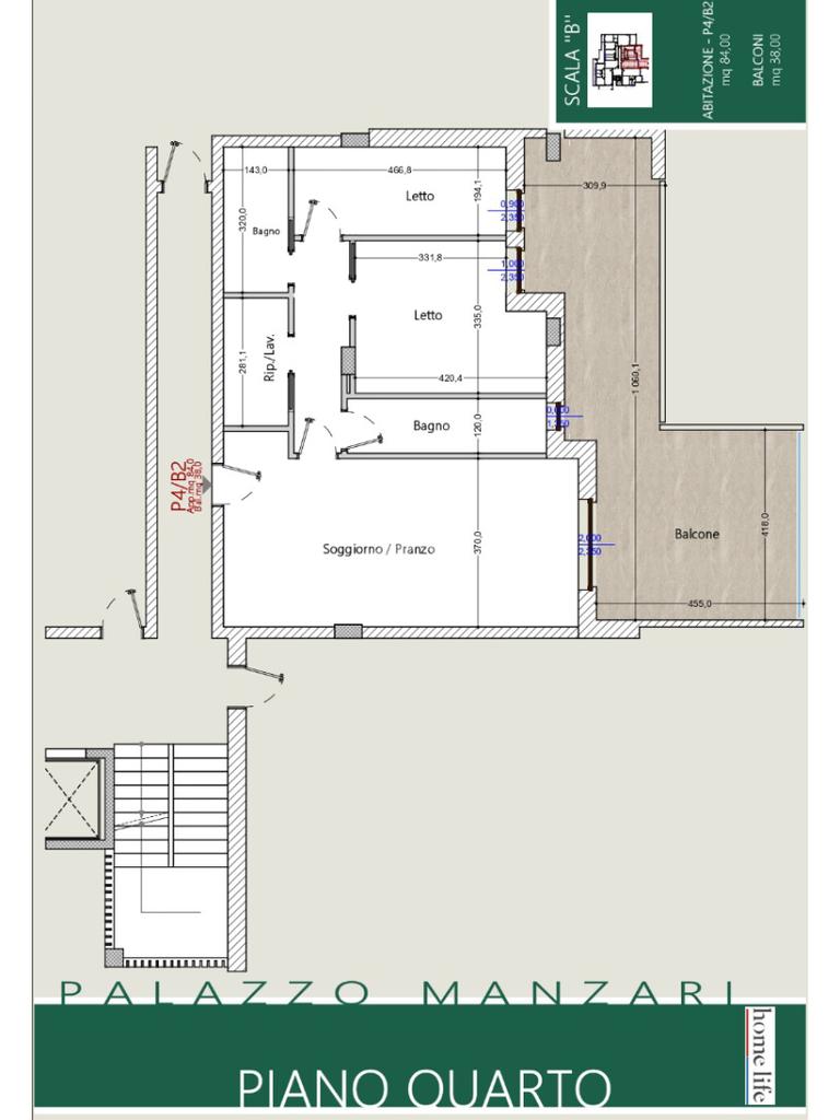
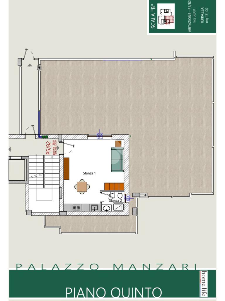
Nel comune di Casamassima, proponiamo in vendita un attico di nuova costruzione, previsto per il 2026.

L'immobile, di 84 mq, si trova in un contesto residenziale moderno e ben servito. L'appartamento è composto da tre locali, offrendo due camere da letto spaziose e luminose, ideali per il riposo e la privacy. Sono presenti due bagni, progettati per garantire comfort e funzionalità. Un ampio balcone si affaccia su un panorama aperto, perfetto per momenti di relax all'aperto.

L'edificio è dotato di ascensore, facilitando l'accesso all'immobile. Questa soluzione abitativa rappresenta un'opportunità per chi cerca un ambiente moderno e funzionale, in una posizione strategica e ben collegata.

Gli immobili verranno realizzati con rifiniture di pregio, materiale di ottima qualità ma soprattutto con massimi standard di efficienza energetica con l'installazione di impianti fotovoltaici per la promozione delle fonti rinnovabili. Saranno provvisti di impermealizzazione e coibentazione del lastrico solare, riscaldamento autonomo a pavimento a pompa di calore, serbatoio acqua calda con capacità pari a 150 litri, impianto fotovoltaico di 1 kW, predisposizione aria condizionata canalizzata, predisposizione impianto allarme volumetrico, predisposizione della fibra ottica, porte blindate, porte interne bianche lisce, infissi in legno o alluminio a taglio termico con vetro camera basso emissivo, tapparelle elettriche.

Mostra tutto

Nelle vicinanze

Trasporto pubblico Trasporto pubblico
Casamassima
Casamassima
780 m
Ricariche auto elettriche Ricariche auto elettriche
Casamassima Pende | EnelX
370 m
Casamassima Sammichele | EnelX
570 m
Casamassima Deledda | EnelX
890 m
Scuole Scuole
I circolo didattico Guglielmo Marconi
540 m
Scuole
940 m
Farmacia Farmacia
Farmacia Palattella
270 m
Supermercati Supermercati
Tuodí
870 m
SPAZIO CONAD
1,4 Km
Negozi Negozi
Negozi
210 m
Scarpe & Scarpe
1,8 Km
TATA
1,9 Km
Bar Bar
Special One Cafè
90 m
Sunrise
490 m
Ristoranti Ristoranti
Ristoranti
220 m
Mostra tutto

Caratteristiche

Rif.:
61141910
Piano:
4 di 5 con ascensore (Piano alto)
Balconi:
1
Camere da letto:
2
Arredamento:
Assente
Condizionamento:
Predisposizione impianto
Mostra tutto
Prezzo Prezzo
€ 222.333
Rata mutuo Rata mutuo
€ 1.038 / mese
Proponi il tuo prezzoProponi il tuo prezzo

Classe Energetica

A4
A4
A4
A4
A4
A4
A4
A4
A4
EP globale non rinnovabile:
1.00 kW h/m² anno
EP globale rinnovabile:
1.00 kW h/m² anno
EP invernale del fabbricato:
EP estiva del fabbricato:
Anno di costruzione:
2026
Riscaldamento:
Autonomo
Tipo impianto:
A pavimento
Tipo alimentazione:
Altro

Prezzo ridotto di €1 (34%%)

Ti interessa visionare l'immobile?

Fissa un appuntamento  Fissa un appuntamento

Richiedi informazioni

Clicca su Leggi per aprire l'informativa
* Questi campi sono obbligatori

Calcola il tuo mutuo

Semplice e senza impegno
Anticipo

( % )
Mutuo

( % )

pochi semplici passi

inserisci i tuoi dati
Questionario completato
Grazie per aver richiesto un appuntamento senza impegno con un nostro Consulente del Credito e Assicurativo.

Hai inserito correttamente tutti i dati necessari e a breve riceverai una e-mail con un link da convalidare per inviare i tuoi dati.
Affiliato
Studio Casamassima D.I.
Corso Vittorio Emanuele, 1/3 70010 Casamassima (BA)
Corso Vittorio Emanuele, 1/3 70010 Casamassima (BA)
Zona: Casamassima
Mostra su mappa
Orari: lunedì/venerdì:9.00-13.00/16.00-20.00; sabato:9.00-13.00
Affiliato
Studio Casamassima D.I.
Corso Vittorio Emanuele, 1/3 70010 Casamassima (BA)

2026 Tecnocasa Franchising S.p.A. - P. IVA 08365160152 - Via Monte Bianco 60/A 20089 Rozzano (MI). Ogni agenzia ha un proprio titolare ed è autonoma. Privacy policy | Policy utilizzo | Cookie policy